Sprockhövel – Am heutigen Montagabend (1. Dezember 2025) herrschte im Vereinsheim des TUS Haßlinghausen 07 e. V. reger Betrieb. Die Stadtverwaltung und der beauftragte Städteplaner informierten die rund 40 erschienenen Zuhörenden über den derzeitigen Planungs- und Realisierungsstand des neuen multifunktionalen Sport-, Kultur- und Begegnungszentrums.
Im Rahmen der Städtebauförderung soll die im Jahr 2023 aufgrund statischer Mängel geschlossene Sporthalle in Haßlinghausen durch ein neues, zeitgenössisches Begegnungszentrum mit einer 3-fach Sporthalle ersetzt werden. Der aufgrund der Förderrichtlinien vorgegebene Fertigstellungstermin ist dabei der 31. Dezember 2029. Zu diesem Termin muss das neue Gebäude fertiggestellt, die finalen Förderanträge dazu müssen im Sommer 2026 eingereicht sein.

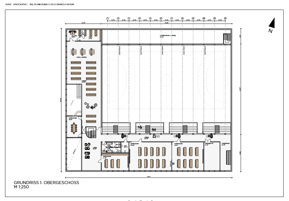
Multifunktionales Sport- und Kulturzentrum Haßlinghausen: Die Vorentwürfe wurden vorgestellt. (Quelle: P/E/P Münster u. Stadtverwaltung Sprockhövel)

Multifunktionales Sport- und Kulturzentrum Haßlinghausen: Hier die Innenperspektive des Vorentwurfes. (Quelle: P/E/P Münster u. Stadtverwaltung Sprockhövel)
Stadtbücherei zieht auch um
Die geplante neue Multifunktionshalle soll neben einer neuen Sporthalle für Schul- und Vereinssport auch Raum für soziale und kulturelle Veranstaltungen bieten. Zudem umfasst das Konzept die Umsiedlung der Stadtbücherei in dieses neue Gebäude.
Bürgerinnen und Bürger werden beteiligt
Heute wurde das aktuelle Raumprogramm im Rahmen der erarbeiteten Machbarkeitsstudie, das in engem Austausch und in gemeinsamer Abstimmung mit den örtlichen Vereinen sowie der Stadtbücherei erarbeitet wurde, offiziell vorgestellt und den Anwesenden ausführlich erläutert.
Die erzielte Kostenreduzierung als Voraussetzung für die Fördermittelbewilligung ist u.a. auch auf die Beibehaltung der vorhandenen Bodenplatte der alten Sporthalle zurückzuführen. In einem authentischen Vortrag ging Architekt Jörg Preckel auf vielfältige Baudetails ein. Der Architekt betonte, dass erst nach der vorliegenden Machbarkeitsstudie die Planer mit der Entwurfsplanung beginnen. In seinem Vortrag stellte und bewertete der Architekt viele bautechnische Details. Dabei ging es neben der Raumplanung auch um Belichtung, Belüftung, um Wärmeplanung – auch die Zugangs- und vielfältigen Nutzungsmöglichkeiten wurden vorgestellt.
Nach der Vorstellung hatten alle Anwesenden die Gelegenheit, sich in einer allgemeinen Diskussion und in Einzelgesprächen zu der Planung zu äußern und ihre Fragen zu stellen.
Die Ergebnisse der allgemeinen Diskussion und der einzelnen Erörterungsgespräche wurden in einer Ergebnisniederschrift festgehalten. Das Raumprogramm liegt zusätzlich in der Zeit vom 2. Dezember bis einschließlich 15. Dezember 2025 im Rathaus öffentlich aus. Eine vorherige Besuchsanmeldung ist nicht erforderlich.
Die Unterlagen sind des Weiteren ab dem 2. Dezember 2025 auf der Homepage der Stadt Sprockhövel abrufbar. Anregungen und Bedenken können während der oben genannten Zeit schriftlich, zur Niederschrift oder per E-Mail , im Rathaus vorgebracht werden. Verspätet eingebrachte Anregungen und Bedenken können nicht mehr berücksichtigt werden.
Die Stadt lädt alle Bürgerinnen und Bürger ein, sich an der Planung zu beteiligen.
































Kommentar hinterlassen zu "Stadt stellt neues Begegnungszentrum vor"